The McVitties Project
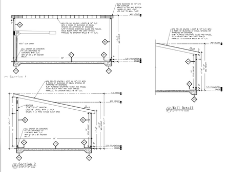
Evan approached CR&J to bring his vision of a dream workshop to life. His project presented some unique challenges, particularly the need to stay within the local building code's maximum roof height while maximizing the shop's interior space. Traditional roof trusses wouldn’t meet these requirements, so after a quick consultation, Steve proposed an innovative solution using I-Joists for the roof trusses. This approach minimized interior space loss, much to Evan's excitement. The team then took over, preparing and pouring the foundation, framing, and completing exterior finishes to deliver a turnkey workshop solution. With each step carefully managed to minimize stress, Evan was delighted with the finished space

The Cruickshanks
"Steve completed the framing for our second story addition with garage. The workmanship is excellent and we appreciated how communicable he was through every step. He was very flexible in planning and had some amazing ideas to adjust the design that made our new home so special. Thank you again Steve!


























